多头钻床都用哪些钻杆,来帮助钻头实现钻孔功能
浏览量:203次 发布时间:2016-08-06 11:01:15
钻床在钻孔零件时,孔距常不同,于是开发了万向节组件来移动钻头位置,加工时只需调整万向节组件中的移动臂来对准钻孔位置,最终多轴钻床实现对不同孔距的零件钻孔工序,更加灵活,适用性强。

ER万向节组件▲
机头T型槽及移动臂▲
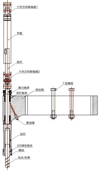
万向节组件由十字万向联轴器1、节套、花键连杆、十字万向联轴器2、移动臂、钻杆等组成。十字万向联轴器1与分动齿轮连接,组件通过移动臂上的2个T型螺栓固定在机头的2到T型槽上。通过调节移动臂位置,实现钻杆位置的调节,满足不同孔距的零件的加工。

十字联轴器▲
钻杆是用于连接钻床与钻头的重要工具,具有卡具的功能和量具的精度,直接关系到钻头是否得到正确的使用,钻削是否达到理想效果的关键因素所在。常用钻杆有ER钻杆和莫氏钻杆。

ER钻杆和莫氏钻杆▲
ER钻杆按所装筒夹分为ER8,ER11,ER16,ER20,ER25,ER32,ER40和ER50这几种规格。其夹持范围如下:

ER钻杆要与ER筒夹配合使用,由螺帽将筒夹向内压入和刀柄内孔锥度配合的夹头收缩完成夹紧过程,夹持力高,精度好。
莫氏钻杆内孔根据莫氏锥度制作,莫氏锥度是一个锥度的国际标准,为19世纪美国机械师莫氏(Stephen A. Morse)为了解决麻花钻的夹持问题(莫氏同时也是世界最早商业化麻花钻头(1864年)的发明者)而发明。由于锥度很小,利用摩擦力的原理,可以传递一定的扭矩,又因为是锥度配合,所以可以方便的拆卸。在同一锥度的一定范围内,工件可以自由的拆装,同时在工作时又不会影响到使用效果,如使用中需要拆卸钻头磨削,拆卸后重新装上不会影响钻头的中心位置。莫氏钻杆根据内孔锥度分为莫氏1号、莫氏2号、莫氏3号、莫氏4号、莫氏5号、莫氏6号等。其夹持范围如下:
考虑到有些情况要保证钻头高度的一致性,钻杆在一定高度范围内可以调整,ER钻杆和莫氏钻杆还有可调式。只需松开钻杆下方的锁紧螺母,拧松钻杆上的小螺钉,就可以调节钻头高度。调节完毕,拧紧小螺钉和锁紧螺母即可。

达人多轴钻床钻杆的选用
多轴钻床上的钻杆▲